#Project BLDing

We have outgrown our space and no longer have the capacity to optimally support all our visitors and programs. As the City of Benbrook is expected to grow to a population of almost 47,000 people, now is the right time to build a new library to embrace the growth. We want to be ready to serve our community and offer a space that meets the wants and needs of all visitors. Business owners, families, seekers of personal and professional development - the new multi-purpose building will accommodate everyone.

We are thrilled about this grand project and we hope you will be a part of our journey!

Projected cost of the new library: 30 Million Dollars

We can do it together!

Rendition of a library building

Library in Numbers

Library Stats

Despite COVID-19-related restrictions and closures, in the last five years (2017-2021), we ran a yearly average of 580 programs attended by almost 16,000 patrons. We project to soon be back to pre-pandemic numbers, with over 24,000 people attending programs in 2019 and a total of almost 110,000 visitors.

Since the beginning of the library in 1999, the population of Benbrook has remained fairly stable (2020: 24,500), but visits to the library have drastically increased. This is, in part, due to our staff, who are consistently creating new and exciting programs for all ages. Our patrons check out almost thrice as many items compared to other Texas libraries of a similar size with merely a quarter of an average Texas library space!

Library Square Footge and Circulation 2020

Current Building Size

  • About 12,000 sq ft
  • 2 study rooms
  • 1 large meeting room
  • 1 small MakerSpace
  • 20 staff members
  • No drive-thru window

NEW Building Size

  • About 45,000 sq ft
  • 6 study rooms, a conference room, and a dedicated reading room
  • 1 extra-large meeting room that can be divided into 3 large meeting rooms
  • 1 large MakerSpace, divided into high and low tech with storage and training areas
  • 21 staff members
  • 1 drive-thru window

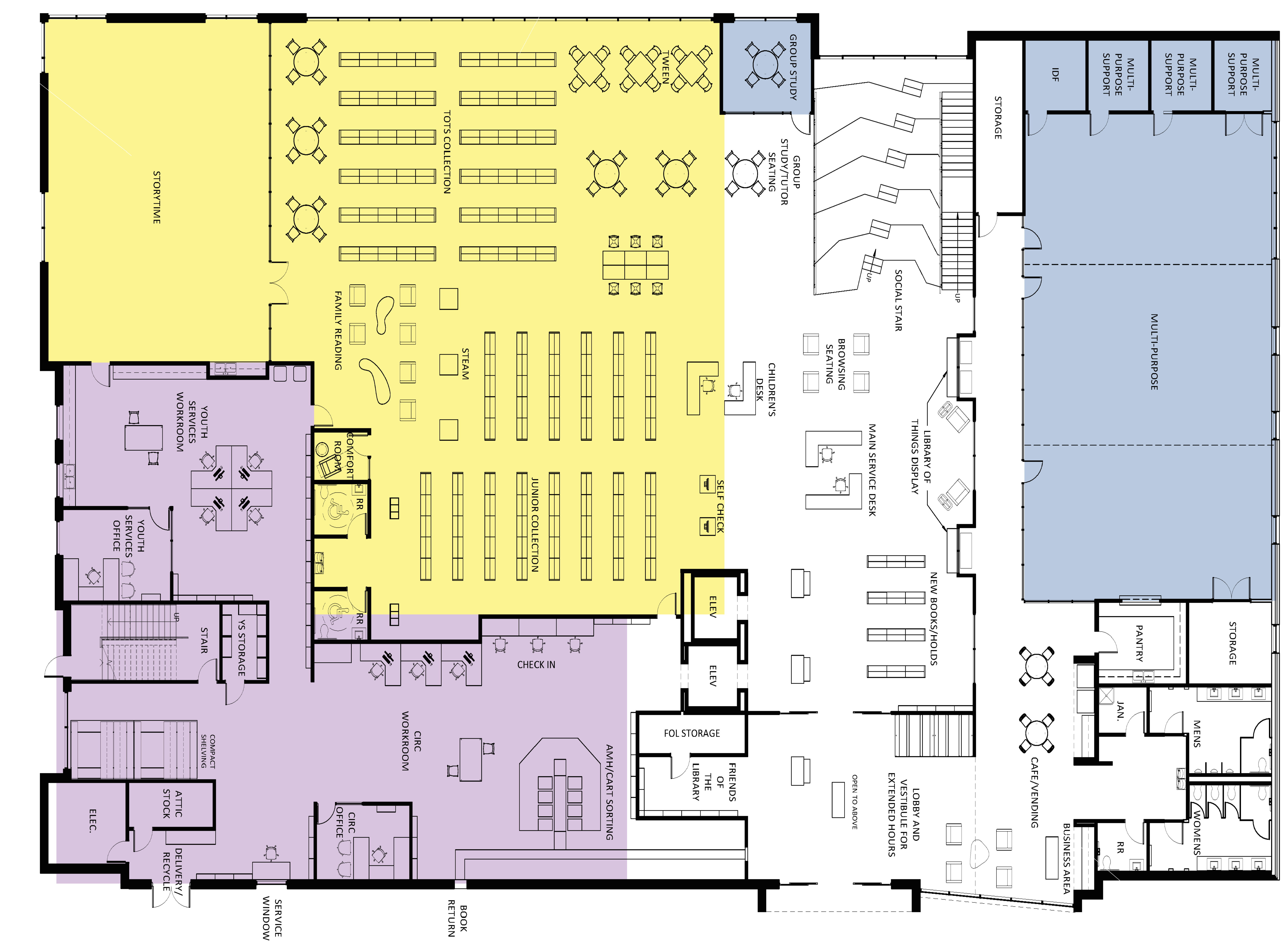
New Building: First Floor Project

First Floor

New Building: Second Floor Project

Second Floor

What Our Patrons Say

"I needed my mortgage application notarized and got it done at the library. They were able to do it the same day I called and I was able to get the house!"

"The hot spot makes our camping trips much better!"

"The Benbrook Library is the diamond of Benbrook."

"I like being able to check out the electronic devices and other kits. [...] I have learned how to create my own 3D designs for printing because of your offerings."

"As a homeschool mom and a co-op teacher, I'm at the library at least once a week. I don't know how I could be effective at teaching without the amazing resources at the Benbrook Library."

"The children's programs make me want to be a kid again."

"Everyone there is so accommodating. You don’t have to go very often for them to know your name. They go out of their way to help you."

"People always say "Home is where the heart is." Well, my heart is with Benbrook Library."

Support Us

TEXT:

lovemylibrary

to 44-321